|
|
 |
 |
|
GWR Route: Banbury to Wolverhampton
Small Heath and Sparkbrook Station: gwrsh3217
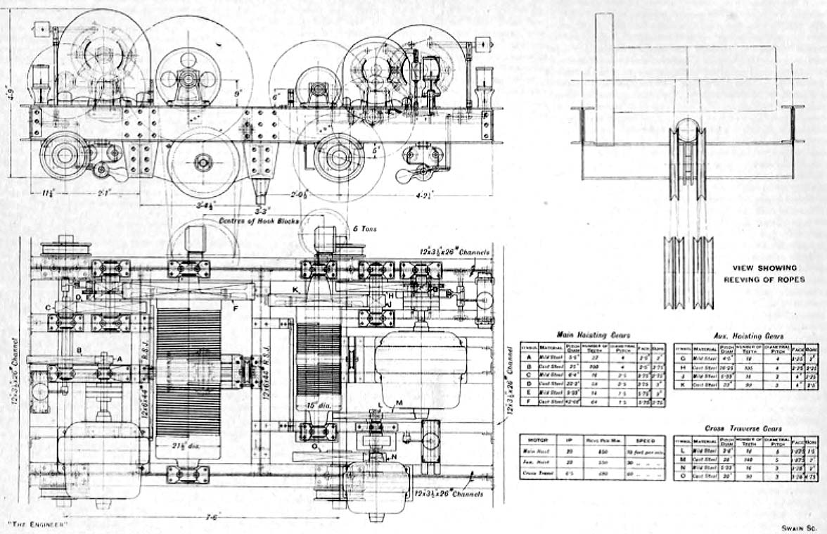
Arrangement of the crab of the 20 ton electrically powered
travelling gantry crane installed at Small Heath down goods yard in early 1925.
This drawing accompanied an article published in The Engineer dated
12th June 1925, which has been reproduced at Small Heath and Sparkbrook Station's 20-Ton Goliath
Crane.
Robert Ferris
back

|
|
|